Competition Project For Atlanpole Nantes France 1988 Architect Hans Kollhoff Nantes Architecture Building Section

Competition Project For Atlanpole Nantes France 1988 Architect Hans Kollhoff Nantes Architecture Building Section

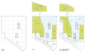
Nantes School Of Architecture Lacaton Vassal School Architecture Architecture Architecture Artists

Nantes School Of Architecture Lacaton Vassal School Architecture Architecture Architecture Artists

Flowers Tropical Flower Arrangements Ikebana Flower Arrangement Flower Arrangements Simple

Flowers Tropical Flower Arrangements Ikebana Flower Arrangement Flower Arrangements Simple

Atelier Aimer Atelier Fleuriste A Nantes Realise Avec Amour Bouquets De Fleurs Com Fleurs Mariage Champetre Bouquet Mariee Boheme Couronne De Fleurs Mariage

Atelier Aimer Atelier Fleuriste A Nantes Realise Avec Amour Bouquets De Fleurs Com Fleurs Mariage Champetre Bouquet Mariee Boheme Couronne De Fleurs Mariage

The Workshop Of The Company La Machine Nantes Workshop Kinetic Art

The Workshop Of The Company La Machine Nantes Workshop Kinetic Art

Http St Loup Com Blog P 1566

Http St Loup Com Blog P 1566

Http St Loup Com Blog P 1566 >

Le Lieu Unique Nantes Patrick Bouchain Architecture Industrielle Lieu Unique Nantes Architecture

Le Lieu Unique Nantes Patrick Bouchain Architecture Industrielle Lieu Unique Nantes Architecture

Pin By Amy Meabon On Steampunk In Honor Of Graham Carousel Horses Steampunk Art Carousel

Pin By Amy Meabon On Steampunk In Honor Of Graham Carousel Horses Steampunk Art Carousel

Mon Bottier Monbottier Boots Ankle Boot Shoes

Mon Bottier Monbottier Boots Ankle Boot Shoes

Kidsen Christmas Window Display Christmas Window Display Shop Window Design Shop Layout

Kidsen Christmas Window Display Christmas Window Display Shop Window Design Shop Layout

Bouquet Of Dried Flowers Dried Flowers Planting Flowers Flowers

Bouquet Of Dried Flowers Dried Flowers Planting Flowers Flowers

Bespoke Dried Flower Crown Metal Circle Dried Flowers Flowers Deco Wreaths

Bespoke Dried Flower Crown Metal Circle Dried Flowers Flowers Deco Wreaths

Scale Model Of Heron Tree At Les Machines Hanging Garden Art And Architecture Architecture

Scale Model Of Heron Tree At Les Machines Hanging Garden Art And Architecture Architecture

La Villa Hamster Nantes France Guest Rooms Designed To Resemble Hamster Cages Complete With Haystack Bed Guest Room Design Hotels In France Groovy Interiors

La Villa Hamster Nantes France Guest Rooms Designed To Resemble Hamster Cages Complete With Haystack Bed Guest Room Design Hotels In France Groovy Interiors

Popular Flower Arrangements Ideas For Valentines Day 13 Jpg 1 024 933 Pixels Valentines Flowers Creative Flower Arrangements Funeral Flower Arrangements

Popular Flower Arrangements Ideas For Valentines Day 13 Jpg 1 024 933 Pixels Valentines Flowers Creative Flower Arrangements Funeral Flower Arrangements

A Map Of Nantes Antoine Corbineau Illustration Design Illustrated Map Map Design Map Art

A Map Of Nantes Antoine Corbineau Illustration Design Illustrated Map Map Design Map Art

Bouquet De Mariee Automne Bouquet Mariee Automne Bouquet Mariee Bouquet Mariee Fleurs Sechees

Bouquet De Mariee Automne Bouquet Mariee Automne Bouquet Mariee Bouquet Mariee Fleurs Sechees

Atelier Glotin A Pontchateau Loire Atlantique Les Autres Portages Escalier Loire Atlantique Interieur

Atelier Glotin A Pontchateau Loire Atlantique Les Autres Portages Escalier Loire Atlantique Interieur

Iflowers Flowers Corporate Table Flower Arrangements Corporate Flowers Flower Arrangements

Iflowers Flowers Corporate Table Flower Arrangements Corporate Flowers Flower Arrangements

Pin On Bloemen Varia

Pin On Bloemen Varia

Pin On The Ultimate Gift

Pin On The Ultimate Gift

Sleek And Stylish These Beautiful Bar Stools Will Add Visual Appeal To Any Room Th Bar Stools Restoration Hardware Dining Chairs Shabby Chic Table And Chairs

Sleek And Stylish These Beautiful Bar Stools Will Add Visual Appeal To Any Room Th Bar Stools Restoration Hardware Dining Chairs Shabby Chic Table And Chairs

Nantes School Of Architecture Lacaton Vassal School Architecture Architecture Architecture Artists

Nantes School Of Architecture Lacaton Vassal School Architecture Architecture Architecture Artists

Epingle Sur Croquis

Epingle Sur Croquis

Https Encrypted Tbn0 Gstatic Com Images Q Tbn And9gcqutaqud7a Otexhrweizdlehr6acndv0d Pdcyoajmcj Cf3qe Usqp Cau

Https Encrypted Tbn0 Gstatic Com Images Q Tbn And9gcqutaqud7a Otexhrweizdlehr6acndv0d Pdcyoajmcj Cf3qe Usqp Cau

Contemporary Modern Cascade Bridal Bouquet Comprised Of Red Roses White Calla Lilies Green Chry Lilac Wedding Bouquet Flowers Bouquet Orchid Bouquet Wedding

Contemporary Modern Cascade Bridal Bouquet Comprised Of Red Roses White Calla Lilies Green Chry Lilac Wedding Bouquet Flowers Bouquet Orchid Bouquet Wedding

Ngc Low Profile Floral Design Flower Arrangement Https Newgardenclubjournal Blogspot Com New Garden Club Journ Flower Arrangements Flower Show Floral Design

Ngc Low Profile Floral Design Flower Arrangement Https Newgardenclubjournal Blogspot Com New Garden Club Journ Flower Arrangements Flower Show Floral Design

Tumba Del Duque Francisco Ii De Bretana Y Su Esposa Margarita De Foix Catedral De San Pedro Y San Pablo Nantes Francia Cada Una De Call Art Art Statue

Tumba Del Duque Francisco Ii De Bretana Y Su Esposa Margarita De Foix Catedral De San Pedro Y San Pablo Nantes Francia Cada Una De Call Art Art Statue

Metabulle On Delirium Lab Fluid 3d Liquid Metamorph Loop Agitation Particules Delirium Lab Krikrak Optical Illusion Gif Optical Illusions Illusion Gif

Metabulle On Delirium Lab Fluid 3d Liquid Metamorph Loop Agitation Particules Delirium Lab Krikrak Optical Illusion Gif Optical Illusions Illusion Gif

Atelier Paul Arene Creation Des Espaces Paysagers De Ma Petite Madelaine Centre Commercial Chambray Les Tours 37 France Paysagiste Parcs Biodiversite

Atelier Paul Arene Creation Des Espaces Paysagers De Ma Petite Madelaine Centre Commercial Chambray Les Tours 37 France Paysagiste Parcs Biodiversite

Bijoux Papi Lili Paper Jewelry Jewelry Inspiration Beaded Bracelets

Bijoux Papi Lili Paper Jewelry Jewelry Inspiration Beaded Bracelets

Pin By Teresa On Florystyka Kompozycje Flower Decorations Flower Arrangements Plants

Pin By Teresa On Florystyka Kompozycje Flower Decorations Flower Arrangements Plants

Carte Postale Chateau De Nantes Postcard Nantes Castle

Carte Postale Chateau De Nantes Postcard Nantes Castle

Mercedes W124 200e 16v Automaat Karo Klaas De Poel Mercedes Benz 200 Mercedes Mercedes Benz

Mercedes W124 200e 16v Automaat Karo Klaas De Poel Mercedes Benz 200 Mercedes Mercedes Benz

Port Code List Sports Nature

Port Code List Sports Nature

Antoine Corbineau Map Illustrator Folio Illustration Agency Map Design Map Illustration Design

Antoine Corbineau Map Illustrator Folio Illustration Agency Map Design Map Illustration Design

Garde Corps Aluminium En Tole Decoupee Grand Large De Chez Bugal Garde Corps Aluminium Garde Corps Garde Corps Exterieur

Garde Corps Aluminium En Tole Decoupee Grand Large De Chez Bugal Garde Corps Aluminium Garde Corps Garde Corps Exterieur

Bespoke Dried Flower Crown Metal Circle Dried Flowers Flower Decorations Flowers

Bespoke Dried Flower Crown Metal Circle Dried Flowers Flower Decorations Flowers

Verriere D Atelier 44 Verriere Verrieres Interieure Acier

Verriere D Atelier 44 Verriere Verrieres Interieure Acier

Rocks Magazine New Antoine Corbineau Illustration Design Illustrated Map Map Art Illustration Design

Rocks Magazine New Antoine Corbineau Illustration Design Illustrated Map Map Art Illustration Design

Atelier Aimer Atelier Fleuriste A Nantes Realise Avec Amour Bouquets De Fleu A Aimer Am Fleurs Sechees Mariage Faire Secher Des Fleurs Fleurs Sechees

Atelier Aimer Atelier Fleuriste A Nantes Realise Avec Amour Bouquets De Fleu A Aimer Am Fleurs Sechees Mariage Faire Secher Des Fleurs Fleurs Sechees

Dode La Boutique Atelier A Nantes Jv Decoration Maison Nantes Deco

Dode La Boutique Atelier A Nantes Jv Decoration Maison Nantes Deco

Air Studio

Air Studio

Nouveautes L Atelier Du Petit Parc Idees De Decor Deco Mobilier

Nouveautes L Atelier Du Petit Parc Idees De Decor Deco Mobilier

Un Locode Issue 2005 2 Remarks On Change Change

Un Locode Issue 2005 2 Remarks On Change Change

Tasses Gres Blanc Emaille Helene Morbu Ceramiste Nantes Ceramique Deco Creations

Tasses Gres Blanc Emaille Helene Morbu Ceramiste Nantes Ceramique Deco Creations

I I Aµi I I I Port Origin Port Destination Port Registry Iºi I

I I Aµi I I I Port Origin Port Destination Port Registry Iºi I

Stade Equestre De La Baule Jacques Boucheton Architecte Jba Nantes Arquitetura Estadio Futebol Esporte

Stade Equestre De La Baule Jacques Boucheton Architecte Jba Nantes Arquitetura Estadio Futebol Esporte

Image Result For Feydball Nantes Nantes

Image Result For Feydball Nantes Nantes

Https Encrypted Tbn0 Gstatic Com Images Q Tbn And9gcs3sddki72yoosf1 E1tci3oq7abplwkhyg Zvdkv8 Usqp Cau

Https Encrypted Tbn0 Gstatic Com Images Q Tbn And9gcs3sddki72yoosf1 E1tci3oq7abplwkhyg Zvdkv8 Usqp Cau

Source : pinterest.com